Uitbouw aan achterzijde woning met veel aandacht en liefde voor modern ontwerp!


Uitbouw aan achterzijde woning met veel aandacht en liefde voor modern ontwerp!

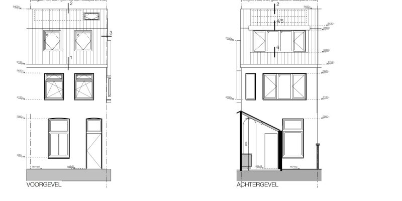
Uitbouw aan achterzijde woning!
Dit project wordt uitgevoerd in samenwerking met Architect Jules Zwijsen www.zwijsen.net

Opbouw op woning!
Dit project wordt uitgevoerd in samenwerking met Architect Jules Zwijsen www.zwijsen.net


Verbouw van bestaande opbouw waardoor een symmetrische kap ontstaat en de 2e verdieping wordt verdubbeld!

Interne verbouw en nieuwe dakkapellen waardoor er een zeer ruime en praktische woning wordt gecreëerd!

Nieuwe aan- en dakopbouw waardoor er een zeer ruime woning wordt gecreëerd!

Nieuwe ruime dakopbouw op woning!

Nieuwe ruime dakkapel op woning!

Aanbouw aan achterzijde in zelfde stijl van karakteristieke villa te Apeldoorn!